Umbau und energetische Sanierung Haus in Falkau
Das Projekt:
- Teilsanierung der Außenhülle und Komplettsanierung Innenraum eines Schwarzwaldhauses
Die Aufgabe:
- Erstellen eines Aufmaßes und modellieren eines 3D Bestandmodelles
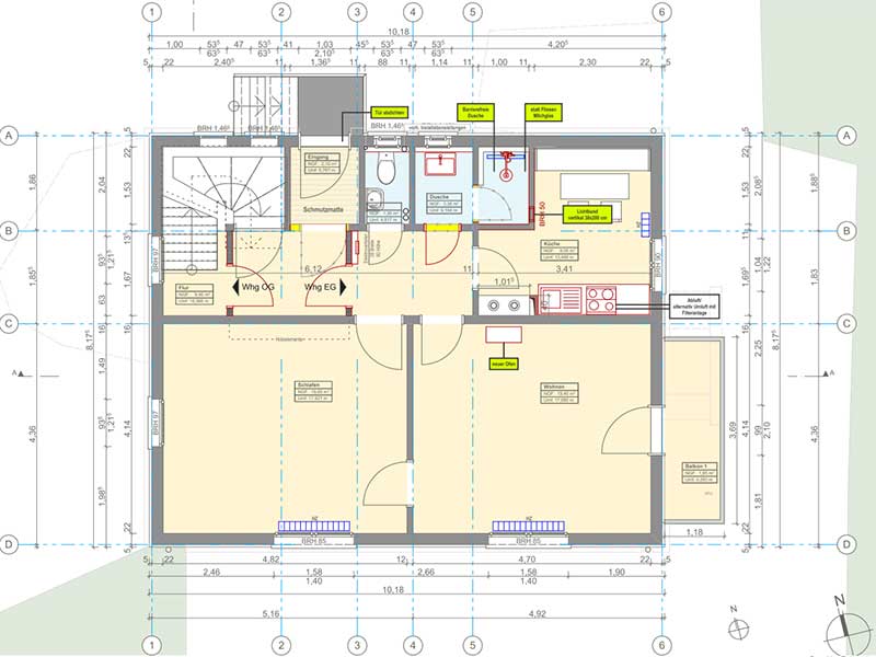
- Varianten zur möglichen Grundrissgestaltung, sowie deren Ansichten und Schnitte
- Erarbeitung eines Umbau- und Sanierungskonzeptes sowie die entsprechende zeichnerische Darstellung
- Mitwirkung in der Angebots- und Ausführungsphase, sowie Bauleitung
- Grundriss OG
- Grundriss EG
- Grundriss EG
- Umbau und energetische Sanierung Haus in Falkau
- Umbau und energetische Sanierung Haus in Falkau
- Umbau und energetische Sanierung Haus in Falkau